KRASNOJARSKÁ, PRAGUE 10
|

AN APARTMENT WITH A GREEN WALL
/realization 2017/
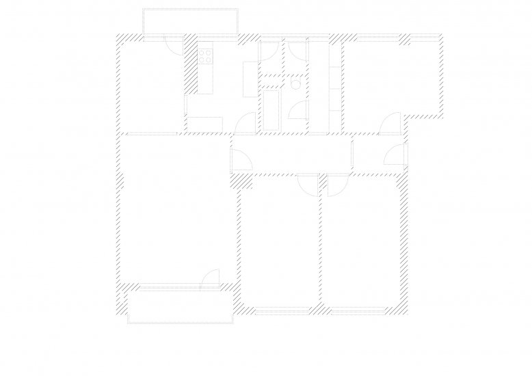
Disposition
The architects changed the original layout of the 5+1 apartment to 4+KK. They connected the kitchen with the dining room and the living room. They completely changed the layout of the core, which is located in the center of the layout. They expanded the courtyard by demolishing the partition and now it is separated from the study only by a furniture wall. The layout of the bedroom and children's room remained unchanged.
![]() |
|
Concept
Few people would have expected such an interior space from the perspective of an apartment building from the 1960s. Behind the insulated facade with plastic windows, however, is not quite an ordinary apartment. Its advantage is a generous floor area and ceiling heating. It was necessary to highlight here. Views are created through the entire apartment in both of its axes. The total length of the apartment can be seen from the entrance door. The living room with dining room and kitchen extends across the entire width of the apartment - respectively the floors - and thus there is access to both balconies from here. The new was combined with the old, the banal with the unexpected. They used a curry net to hang the plants, instead of a picture or an author's element, the architects hung a bicycle (authentic means of transport for control days) on the wall as a symbolic initial for the completed project.

-10.png)




















